Di Masa pensiun, idealnya seseorang akan menikmati hari tua dengan kegiatan yang ringan dan ketenangan, sama hal nya dengan perencanaan pada project kali ini, yang direncanakan owner untuk hunian setelah purna Tugas, setelah sekian puluh tahun sebagai abdi negara.
Rumah hunian ini, berada di sebuah Desa yang cukup tenang di pinggiran Kota Nganjuk yang masih dikelilingi oleh ladang persawahan.
KONSEP
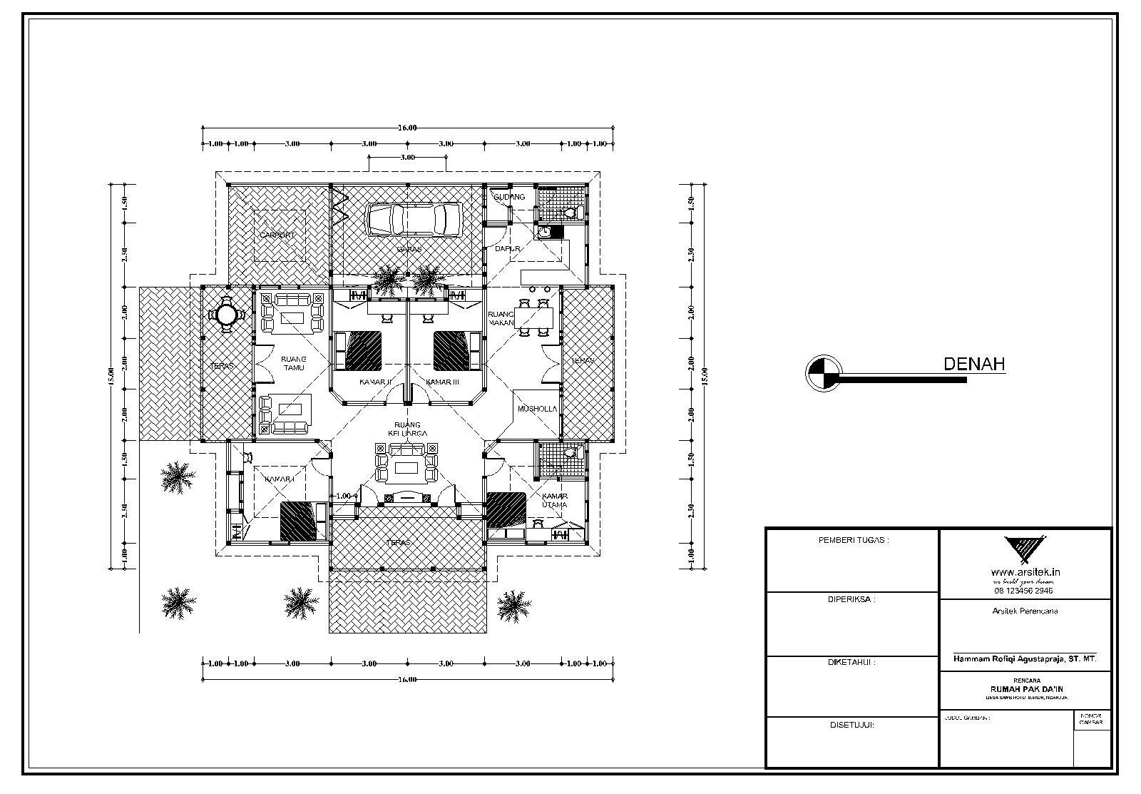
Pemilik menginkan Hunian yang yang nyaman, yang nantinya bisa digunakan untuk "pulang" ketiga anaknya yang merantau. konsep denah semua pintu dari kamar di pusatkan mengahdap ke ruang keluarga, agar setiap kali keluar kamar ada titik temu di rumah yang digunakan sebagai ruang kumpul satu sama lain.
 |
| konsep denah |
 |
| rencana denah |
Luas Site yang sangat Luas, difungsikan untuk berbagai kegiatan untuk mengisi waktu luang, adanya tempat (joglo) di depan rumah yang digunakan untuk mengajar anak-anak sekitar mengaji, ada fungsi hunian dan juga fungsi usaha di pojok site, yang menginginkan usaha pertukangan, dan mengurangi resiko kebisingan, di belakang site merupakan ladang jati milik owner, sehingga lebih dekat dengan zona usaha.
 |
| rencana siteplan |
ALTERNATIF DESAIN
Fasad bangunan dibuat etnik vernakuler yaitu beratap perisa sesuai dengan kondisi desa dan masyarakat sekitar, ada pengeksposan batu bata merah, karena di daerah ini terdapat industri batu bata yang bagus dan berkualitas, sehingga bisa dijadikan sebagai ornamen pelengkap untuk hunian tersebut.
 |
| tampak depan alt 1 |
 |
| perspektif alt 1 |
 |
| perspektif alt 1 |
 |
| tampak depan alt 2 |
 |
| perspektif alt 2 |
 |
| perspektif alt 2 |
RENCANA DESAIN
 |
| perspektif rencana tampak depan |
 |
| rencana tampak depan |
 |
| perspektif rencana gazebo |
 |
| perspektif rencana pagar |
by
hamiqi
ada email atau nomor hp untuk konsultasi?
BalasHapusHammam.ra@gmail.com
HapusIf you be ok with} it, then perhaps you are able to get pleasure from online roulette gambling for real 1xbet money utilizing high stakes. Check out our recommended mobile roulette on line casino online listed above. Roulette is a quite simple game to play, and on line casino online roulette or digital roulette is not any completely different. Still, want to|you should|you have to} know the foundations of the sport before you play at online on line casino sites. So, we now have created a simple method to|tips on how to} play roulette UK information. First off, players guess where the ball will land on the next spin by betting on sure numbers or sections of the board.
BalasHapus